Construction Documents
Get expert-crafted construction plans tailored to your project’s exact needs—residential additions renovations and detached structures. Start your project with confidence and clarity using professionally designed plans ready for permitting and construction.
Photorealistic Rendering
Bring your construction project to life with stunning photorealistic renders that showcase every detail before the first brick is laid. Our high-quality visuals help you impress clients, secure approvals, and market with confidence. From interior designs to full building exteriors, we turn plans into vivid, lifelike imagery.
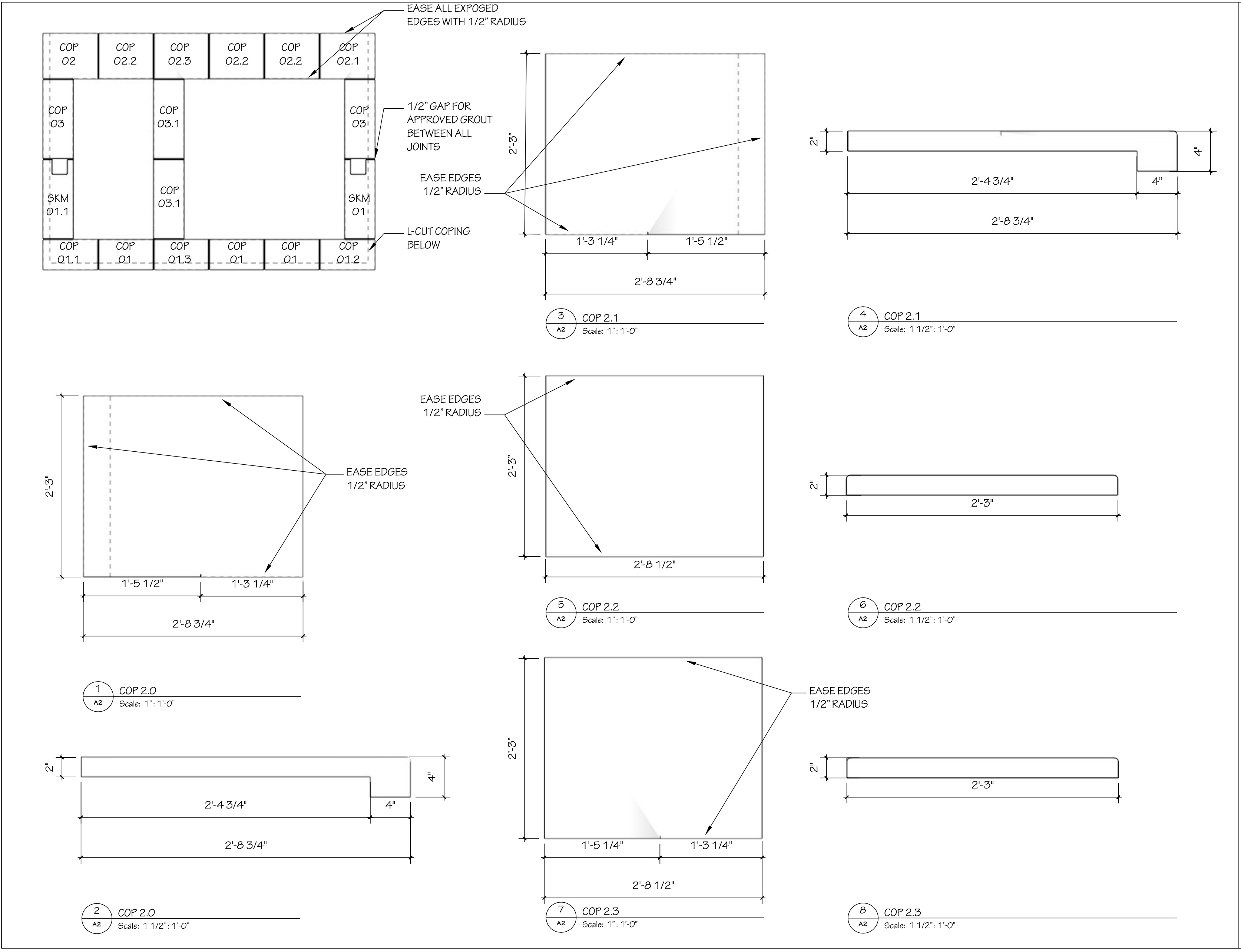
Shop Drawings
Ensure precision and clarity on every build with our professional shop drawing services tailored to your project’s specifications. We provide detailed, contractor-ready drawings that align perfectly with architectural and engineering plans. Streamline fabrication, avoid costly errors, and keep your construction process running smoothly from start to finish.


































